Projekt Centrum Kultury w Siechnicach. Zabierz głos w konsultacjach społecznych
Zobacz też:
Mieszkańcy zabiorą głos
Konsultacje społeczne odbędą się w piątek, 10 kwietnia 2026 roku. Ich celem jest poznanie opinii mieszkańców na temat koncepcji architektonicznej oraz programu funkcjonalno-użytkowego nowego obiektu.
Udział w konsultacjach będą mogli wziąć pełnoletni mieszkańcy gminy.
Formy udziału:
- spotkanie stacjonarne – 10 kwietnia 2026 r. (16:00-18:00) w Urzędzie Miejskim,
- ankieta internetowa dostępna na stronie gminy.
Wszystkie opinie i wnioski zostaną uwzględnione w dokumentacji konsultacyjnej.
Nowoczesne centrum w sercu miasta
Planowane Centrum Kultury ma powstać w centralnej części miasta – na obszarze wyznaczonym ulicami Piłsudskiego, Fieldorfa i Jana Pawła II, w sąsiedztwie ratusza.
Projekt zakłada budowę nowoczesnego, dwukondygnacyjnego obiektu z garażem podziemnym, zaprojektowanego jako wielofunkcyjna przestrzeń dla mieszkańców w każdym wieku.
Co znajdzie się w środku?
Nowe Centrum Kultury ma łączyć wiele funkcji społecznych, edukacyjnych i kulturalnych. W budynku zaplanowano m.in.:
Bibliotekę nowej generacji
Otwarta przestrzeń z czytelnią, biblioteką multimedialną oraz strefami do odpoczynku i pracy.
Kawiarnię
Zlokalizowaną w reprezentacyjnej części obiektu, z możliwością połączenia z biblioteką.
Salę widowiskową
Na około 300–350 osób, przystosowaną do koncertów, spektakli i wydarzeń scenicznych.
Sale konferencyjne
Cztery przestrzenie o różnej wielkości – od kameralnych spotkań po duże wydarzenia nawet dla 200 osób.
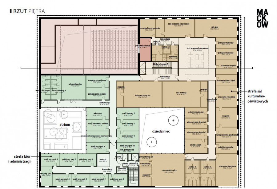
Pracownie i sale zajęciowe
Na piętrze znajdą się m.in. pracownie plastyczne, muzyczne, filmowe, studio nagrań, sala tańca oraz przestrzenie edukacyjne.
Biura i przestrzeń dla organizacji
Zaplanowano część administracyjną oraz biura dla lokalnych organizacji społecznych.
Przestrzeń wystawiennicza i muzealna
Umożliwiająca organizację wystaw i wydarzeń artystycznych.
Infrastruktura i otoczenie
Pod budynkiem znajdzie się garaż podziemny, pełniący również funkcję miejsca doraźnego schronienia.
Wokół obiektu zaplanowano:
- ciągi piesze i przestrzenie publiczne,
- zieleń oraz nowe nasadzenia,
- zatokę autobusową przy ul. Piłsudskiego,
- wewnętrzny dziedziniec pełniący funkcję atrium.
Budynek będzie miał formę nowoczesnego pawilonu z wewnętrznym dziedzińcem, który doświetli przestrzenie na wyższych kondygnacjach.
Inwestycja dla przyszłości
Planowane Centrum Kultury ma stać się jednym z najważniejszych miejsc życia społecznego w gminie – przestrzenią spotkań, edukacji, rozwoju pasji i integracji mieszkańców.
Rozpoczynające się konsultacje to pierwszy krok, by projekt jak najlepiej odpowiadał potrzebom lokalnej społeczności.
To dobry moment, by zabrać głos i współtworzyć przyszłość Siechnic!
Wizualizacje: Pracownia Projektowa Maćków, źródło: Uchwała nr XXVI/376/26 RM w Siechnicach



